
BAUTENT Vita Mini
60 m² · Flachdach · EG
Bungalow · 60 m² · Flachdach · ab 130.000 €
Barrierefreies Wohnen muss keine Kompromisse bedeuten. BAUTENT Vita Mini beweist, dass sich Komfort und clevere Architektur auf 60 m² perfekt ergänzen — für jede Lebensphase.
Das moderne Flachdach verleiht dem Haus eine zeitgemäße Ästhetik und ermöglicht die optionale Nutzung als Dachterrasse oder für eine Energieeffizienz.
Highlights
- 60 m² Wohnfläche auf einer Ebene
- Barrierefreier Zugang ohne Treppen
- Flachdach für moderne Optik
- Energieeffiziente Bauweise (KfW-fachgerecht)
- Schlüsselfertige Übergabe zum Festpreis
Technische Daten
| Wohnfläche | 60 m² |
| Dachform | Flachdach |
| Geschosse | EG |
| Bauweise | Holzrahmenbau (schlüsselfertig) |
| Energiestandard | KfW-fachgerecht |
| Preis | ab 130.000 € (Festpreis) |
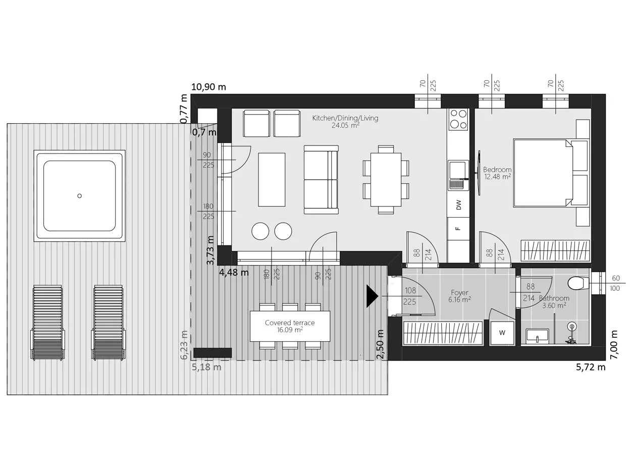
Grundriss
Erdgeschoss
Häufige Fragen
Was kostet BAUTENT Vita Mini?
BAUTENT Vita Mini ist als schlüsselfertiges Bungalow ab 130.000 € erhältlich. Der Festpreis umfasst die komplette Ausstattung ohne versteckte Zusatzkosten.
Ist BAUTENT Vita Mini barrierefrei?
Ja, als Bungalow bietet BAUTENT Vita Mini alle Wohnbereiche auf einer Ebene — ohne Treppen und Schwellen. Ideal für barrierefreies Wohnen in jeder Lebensphase.
Wie lange dauert der Bau?
Die Bauzeit für BAUTENT Vita Mini beträgt in der Regel 8-14 Wochen ab Fundamentlegung. Die Vorfertigung im Werk beschleunigt den Prozess erheblich.
Kann der Grundriss angepasst werden?
Selbstverständlich. BAUTENT Vita Mini ist individuell anpassbar — von der Raumaufteilung über die Fensterpositionierung bis zur Fassadengestaltung. Wir beraten Sie gerne.
Interesse an BAUTENT Vita Mini?
Vereinbaren Sie jetzt Ihr kostenloses Beratungsgespräch. Wir planen Ihr Traumhaus gemeinsam — individuell, transparent und zum Festpreis.
Oder rufen Sie uns an: 0721 9688 4688