
BAUTENT Alpen
220 m² · Satteldach · EG+OG
Stadtvilla · 220 m² · Satteldach · ab 480.000 €
Eine Adresse mit Klasse: BAUTENT Alpen setzt mit 220 m² Wohnfläche Maßstäbe im gehobenen Hausbau. Die großzügigen Raumproportionen und die durchdachte Grundrissplanung schaffen ein Wohnerlebnis der besonderen Art.
Das klassische Satteldach bietet optimalen Witterungsschutz und schafft zusätzlichen Stauraum im Dachgeschoss. Es fügt sich harmonisch in jede Nachbarschaft ein.
Highlights
- 220 m² gehobene Wohnfläche
- Repräsentatives Satteldach
- Großzügige Raumhöhen
- Geschosse: EG+OG
- Premium-Ausstattung serienmäßig
- Schlüsselfertige Übergabe
Technische Daten
| Wohnfläche | 220 m² |
| Dachform | Satteldach |
| Geschosse | EG+OG |
| Bauweise | Holzrahmenbau (schlüsselfertig) |
| Energiestandard | KfW-fachgerecht |
| Preis | ab 480.000 € (Festpreis) |
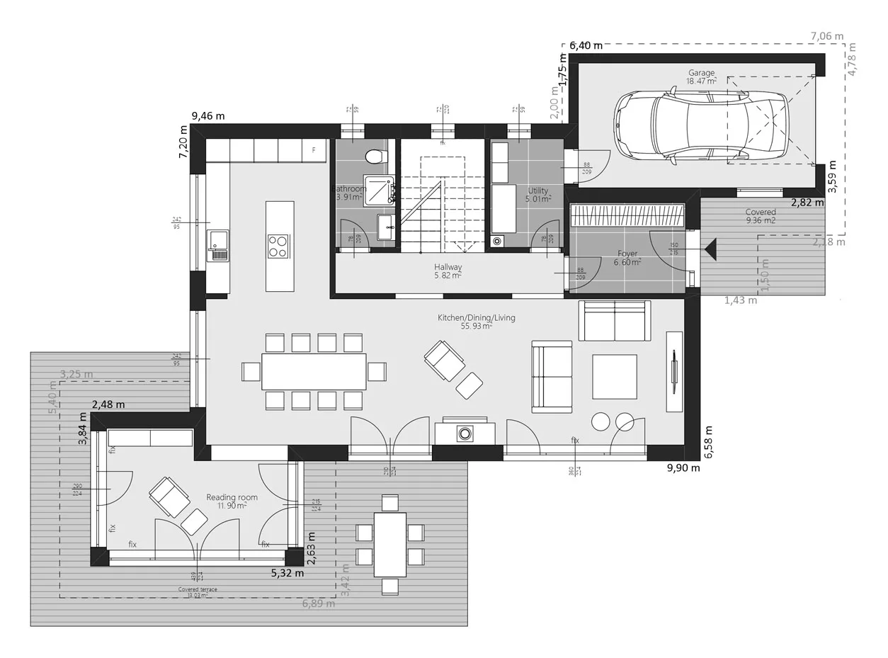
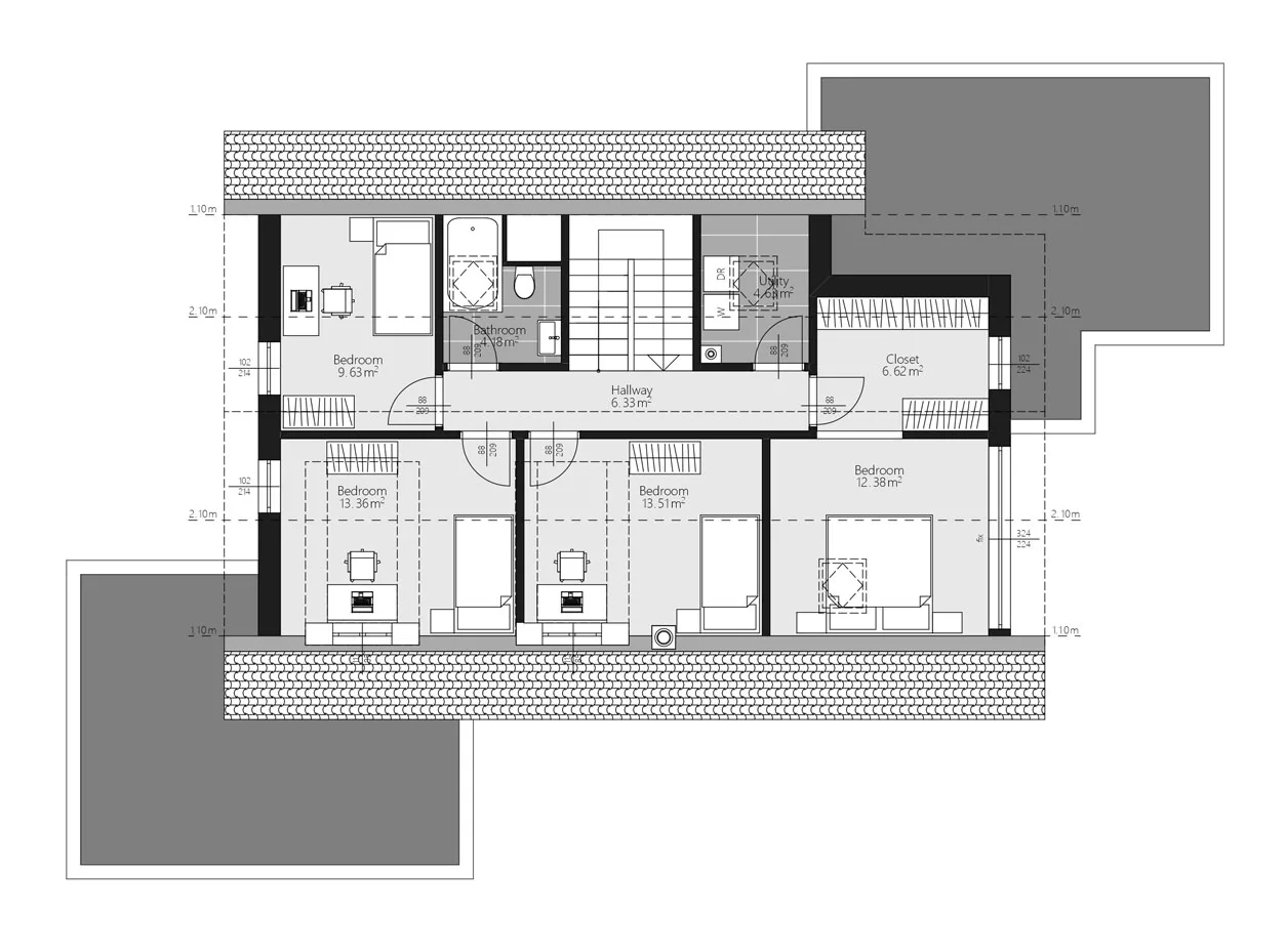
Grundriss
Erdgeschoss

Obergeschoss
Häufige Fragen
Was kostet BAUTENT Alpen?
BAUTENT Alpen ist als schlüsselfertiges Stadtvilla ab 480.000 € erhältlich. Der Festpreis gilt für die schlüsselfertige Übergabe ohne versteckte Kosten.
Welche Planungshilfen kann ich nutzen?
Für BAUTENT Alpen kommen verschiedene KfW-Programme in Frage, z.B. KfW 40 (Klimafreundlicher Neubau). Wir beraten Sie zu allen Möglichkeiten in der Region.
Wie lange dauert der Bau?
Die Bauzeit für BAUTENT Alpen beträgt in der Regel 10-16 Wochen ab Fundamentlegung. Durch die industrielle Vorfertigung ist der Bau deutlich schneller als konventionelle Bauweisen.
Kann der Grundriss verändert werden?
Ja, alle BAUTENT Modelle sind individuell anpassbar. Sie wählen Raumaufteilung, Fenster, Fassade und Innenausstattung nach Ihren Wünschen.
Interesse an BAUTENT Alpen?
Vereinbaren Sie jetzt Ihr kostenloses Beratungsgespräch. Wir planen Ihr Traumhaus gemeinsam — individuell, transparent und zum Festpreis.
Oder rufen Sie uns an: 0721 9688 4688