
BAUTENT Bergstrasse
198 m² · Walmdach · EG+OG
Stadtvilla · 198 m² · Walmdach · ab 440.000 €
Repräsentativ wohnen auf zwei Ebenen: BAUTENT Bergstrasse vereint den Charakter einer klassischen Stadtvilla mit modernem Wohnkomfort. Auf 198 m² entsteht ein Zuhause, das Eindruck macht — von der Eingangspartie bis zum letzten Detail.
Das elegante Walmdach bietet hervorragenden Schutz vor Wind und Wetter und verleiht dem Haus einen repräsentativen Charakter.
Highlights
- 198 m² gehobene Wohnfläche
- Repräsentatives Walmdach
- Großzügige Raumhöhen
- Geschosse: EG+OG
- Premium-Ausstattung serienmäßig
- Schlüsselfertige Übergabe
Technische Daten
| Wohnfläche | 198 m² |
| Dachform | Walmdach |
| Geschosse | EG+OG |
| Bauweise | Holzrahmenbau (schlüsselfertig) |
| Energiestandard | KfW-fachgerecht |
| Preis | ab 440.000 € (Festpreis) |
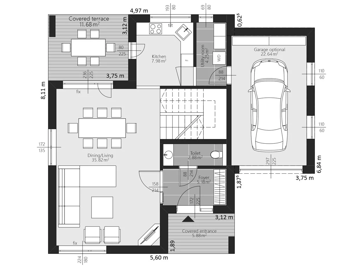
Grundriss
Erdgeschoss
Häufige Fragen
Was kostet BAUTENT Bergstrasse?
BAUTENT Bergstrasse ist als schlüsselfertiges Stadtvilla ab 440.000 € erhältlich. Der Festpreis gilt für die schlüsselfertige Übergabe ohne versteckte Kosten.
Welche Planungshilfen kann ich nutzen?
Für BAUTENT Bergstrasse kommen verschiedene KfW-Programme in Frage, z.B. KfW 40 (Klimafreundlicher Neubau). Wir beraten Sie zu allen Möglichkeiten in der Region.
Wie lange dauert der Bau?
Die Bauzeit für BAUTENT Bergstrasse beträgt in der Regel 10-16 Wochen ab Fundamentlegung. Durch die industrielle Vorfertigung ist der Bau deutlich schneller als konventionelle Bauweisen.
Kann der Grundriss verändert werden?
Ja, alle BAUTENT Modelle sind individuell anpassbar. Sie wählen Raumaufteilung, Fenster, Fassade und Innenausstattung nach Ihren Wünschen.
Interesse an BAUTENT Bergstrasse?
Vereinbaren Sie jetzt Ihr kostenloses Beratungsgespräch. Wir planen Ihr Traumhaus gemeinsam — individuell, transparent und zum Festpreis.
Oder rufen Sie uns an: 0721 9688 4688