
BAUTENT Duo Karlsruhe
230 m² · Satteldach · EG+OG
Doppelhaus · 230 m² · Satteldach · ab 510.000 €
Gemeinsam bauen, getrennt wohnen: BAUTENT Duo Karlsruhe macht es möglich. Mit insgesamt 230 m² Wohnfläche bietet dieses Doppelhaus zwei eigenständige Wohneinheiten unter einem Dach — ideal für Baugemeinschaften, Mehrgenerationenwohnen oder als Investmentobjekt.
Das klassische Satteldach bietet optimalen Witterungsschutz und schafft zusätzlichen Stauraum im Dachgeschoss. Es fügt sich harmonisch in jede Nachbarschaft ein.
Highlights
- 230 m² Gesamtfläche (ca. 115 m² pro Hälfte)
- Zwei unabhängige Wohneinheiten
- Satteldach mit EG+OG
- Separate Eingänge und Gärten
- Wirtschaftlicher als zwei Einzelhäuser
- Schlüsselfertig zum Festpreis
Technische Daten
| Wohnfläche | 230 m² |
| Dachform | Satteldach |
| Geschosse | EG+OG |
| Bauweise | Holzrahmenbau (schlüsselfertig) |
| Energiestandard | KfW-fachgerecht |
| Preis | ab 510.000 € (Festpreis) |
| Fläche pro Einheit | ca. 115 m² |
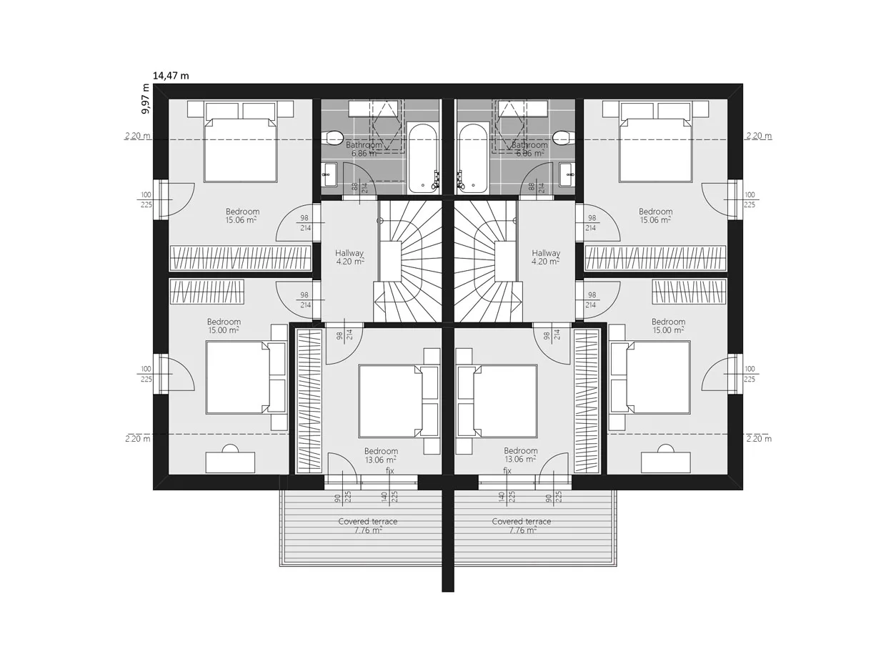
Grundriss
Erdgeschoss

Obergeschoss
Häufige Fragen
Was kostet BAUTENT Duo Karlsruhe?
BAUTENT Duo Karlsruhe ist als schlüsselfertiges Doppelhaus ab 510.000 € Gesamtpreis erhältlich. Pro Doppelhaushälfte bedeutet das ab ca. 255.000 € — deutlich günstiger als zwei Einzelhäuser.
Können beide Hälften unterschiedlich gestaltet werden?
Ja, jede Doppelhaushälfte kann individuell angepasst werden — von der Raumaufteilung bis zur Fassade. Die Grundstruktur bleibt dabei harmonisch.
Wie ist die Schalldämmung zwischen den Hälften?
Unsere Doppelhäuser verfügen über eine hochwertige Trennwand mit erstklassiger Schall- und Wärmedämmung. Sie hören von Ihren Nachbarn so gut wie nichts.
Wie lange dauert der Bau?
Die Bauzeit für BAUTENT Duo Karlsruhe beträgt ca. 12-18 Wochen ab Fundamentlegung. Beide Hälften werden parallel errichtet.
Interesse an BAUTENT Duo Karlsruhe?
Vereinbaren Sie jetzt Ihr kostenloses Beratungsgespräch. Wir planen Ihr Traumhaus gemeinsam — individuell, transparent und zum Festpreis.
Oder rufen Sie uns an: 0721 9688 4688