
BAUTENT Duo Mannheim
250 m² · Satteldach · EG+OG
Doppelhaus · 250 m² · Satteldach · ab 550.000 €
Doppelhaus-Wohnen neu gedacht: BAUTENT Duo Mannheim bietet 250 m² Gesamtfläche, aufgeteilt in zwei gleichwertige Wohneinheiten. Ideal für alle, die Grundstückskosten teilen und trotzdem unabhängig leben möchten.
Das klassische Satteldach bietet optimalen Witterungsschutz und schafft zusätzlichen Stauraum im Dachgeschoss. Es fügt sich harmonisch in jede Nachbarschaft ein.
Highlights
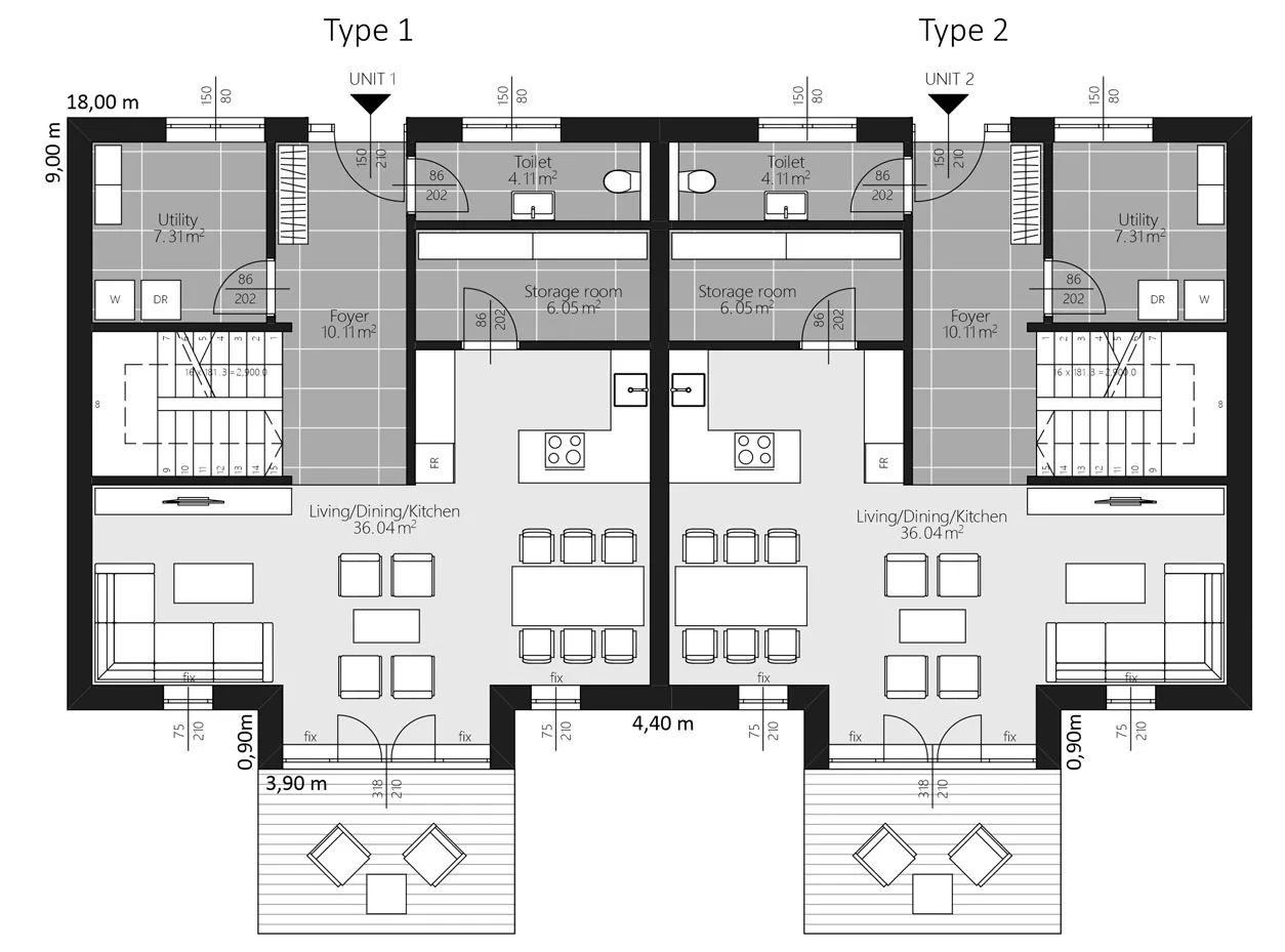
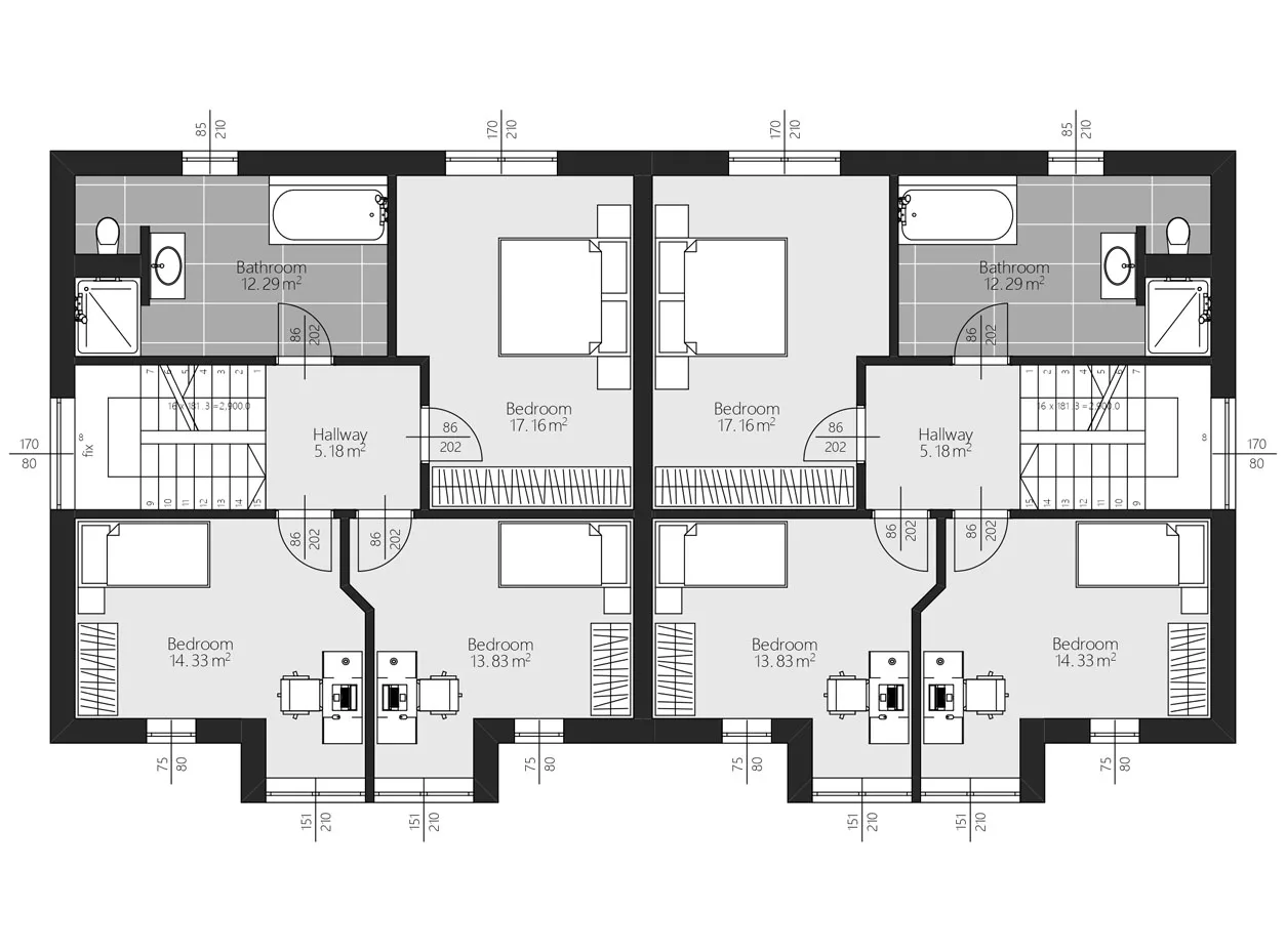
- 250 m² Gesamtfläche (ca. 125 m² pro Hälfte)
- Zwei unabhängige Wohneinheiten
- Satteldach mit EG+OG
- Separate Eingänge und Gärten
- Wirtschaftlicher als zwei Einzelhäuser
- Schlüsselfertig zum Festpreis
Technische Daten
| Wohnfläche | 250 m² |
| Dachform | Satteldach |
| Geschosse | EG+OG |
| Bauweise | Holzrahmenbau (schlüsselfertig) |
| Energiestandard | KfW-fachgerecht |
| Preis | ab 550.000 € (Festpreis) |
| Fläche pro Einheit | ca. 125 m² |
Grundriss
Erdgeschoss

Obergeschoss
Häufige Fragen
Was kostet BAUTENT Duo Mannheim?
BAUTENT Duo Mannheim ist als schlüsselfertiges Doppelhaus ab 550.000 € Gesamtpreis erhältlich. Pro Doppelhaushälfte bedeutet das ab ca. 275.000 € — deutlich günstiger als zwei Einzelhäuser.
Können beide Hälften unterschiedlich gestaltet werden?
Ja, jede Doppelhaushälfte kann individuell angepasst werden — von der Raumaufteilung bis zur Fassade. Die Grundstruktur bleibt dabei harmonisch.
Wie ist die Schalldämmung zwischen den Hälften?
Unsere Doppelhäuser verfügen über eine hochwertige Trennwand mit erstklassiger Schall- und Wärmedämmung. Sie hören von Ihren Nachbarn so gut wie nichts.
Wie lange dauert der Bau?
Die Bauzeit für BAUTENT Duo Mannheim beträgt ca. 12-18 Wochen ab Fundamentlegung. Beide Hälften werden parallel errichtet.
Interesse an BAUTENT Duo Mannheim?
Vereinbaren Sie jetzt Ihr kostenloses Beratungsgespräch. Wir planen Ihr Traumhaus gemeinsam — individuell, transparent und zum Festpreis.
Oder rufen Sie uns an: 0721 9688 4688