
BAUTENT Nordland
180 m² · Satteldach · EG+OG
Einfamilienhaus · 180 m² · Satteldach · ab 400.000 €
Ein Zuhause, das mitwächst: BAUTENT Nordland bietet auf 180 m² großzügigen Wohnraum für Familien, die Qualität und Funktionalität schätzen. Die klare Aufteilung in Wohn- und Schlafbereich sorgt für Privatsphäre und Gemeinschaft zugleich.
Das klassische Satteldach bietet optimalen Witterungsschutz und schafft zusätzlichen Stauraum im Dachgeschoss. Es fügt sich harmonisch in jede Nachbarschaft ein.
Highlights
- 180 m² Wohnfläche auf EG+OG
- Satteldach — zeitlos und bewährt
- Offener Wohn-/Essbereich im Erdgeschoss
- Schlafzimmer im Obergeschoss
- Energieeffizient nach aktuellem Standard
- Schlüsselfertig zum Festpreis
Technische Daten
| Wohnfläche | 180 m² |
| Dachform | Satteldach |
| Geschosse | EG+OG |
| Bauweise | Holzrahmenbau (schlüsselfertig) |
| Energiestandard | KfW-fachgerecht |
| Preis | ab 400.000 € (Festpreis) |
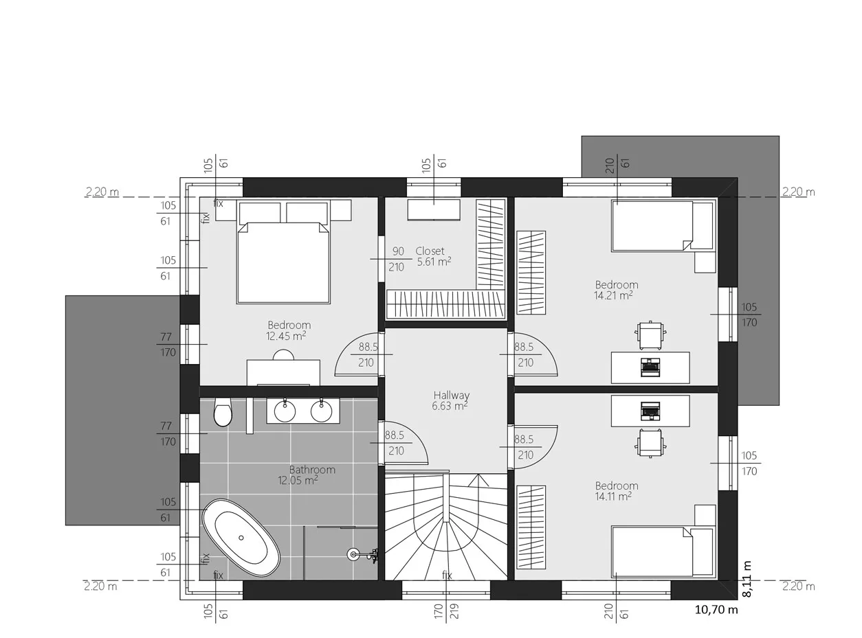
Grundriss
Erdgeschoss

Obergeschoss
Häufige Fragen
Was kostet BAUTENT Nordland?
BAUTENT Nordland ist als schlüsselfertiges Einfamilienhaus ab 400.000 € erhältlich. Der Festpreis gilt für die schlüsselfertige Übergabe ohne versteckte Kosten.
Welche Planungshilfen kann ich nutzen?
Für BAUTENT Nordland kommen verschiedene KfW-Programme in Frage, z.B. KfW 40 (Klimafreundlicher Neubau). Wir beraten Sie zu allen Möglichkeiten in der Region.
Wie lange dauert der Bau?
Die Bauzeit für BAUTENT Nordland beträgt in der Regel 10-16 Wochen ab Fundamentlegung. Durch die industrielle Vorfertigung ist der Bau deutlich schneller als konventionelle Bauweisen.
Kann der Grundriss verändert werden?
Ja, alle BAUTENT Modelle sind individuell anpassbar. Sie wählen Raumaufteilung, Fenster, Fassade und Innenausstattung nach Ihren Wünschen.
Interesse an BAUTENT Nordland?
Vereinbaren Sie jetzt Ihr kostenloses Beratungsgespräch. Wir planen Ihr Traumhaus gemeinsam — individuell, transparent und zum Festpreis.
Oder rufen Sie uns an: 0721 9688 4688