
BAUTENT Sonnenhang
201 m² · Flachdach · EG+OG
Einfamilienhaus · 201 m² · Flachdach · ab 440.000 €
Modernes Wohnen braucht Raum und Struktur. BAUTENT Sonnenhang verbindet auf 201 m² offene Wohnbereiche mit privaten Rückzugsorten und schafft so ein Zuhause, in dem sich jedes Familienmitglied wohlfühlt.
Das moderne Flachdach verleiht dem Haus eine zeitgemäße Ästhetik und ermöglicht die optionale Nutzung als Dachterrasse oder für eine Energieeffizienz.
Highlights
- 201 m² Wohnfläche auf EG+OG
- Flachdach — modern und funktional
- Offener Wohn-/Essbereich im Erdgeschoss
- Schlafzimmer im Obergeschoss
- Energieeffizient nach aktuellem Standard
- Schlüsselfertig zum Festpreis
Technische Daten
| Wohnfläche | 201 m² |
| Dachform | Flachdach |
| Geschosse | EG+OG |
| Bauweise | Holzrahmenbau (schlüsselfertig) |
| Energiestandard | KfW-fachgerecht |
| Preis | ab 440.000 € (Festpreis) |
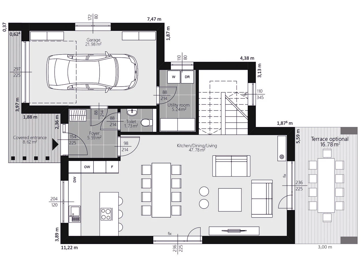
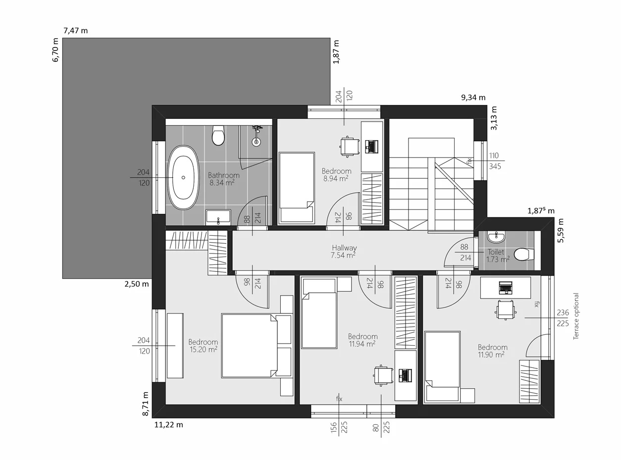
Grundriss
Erdgeschoss

Obergeschoss
Häufige Fragen
Was kostet BAUTENT Sonnenhang?
BAUTENT Sonnenhang ist als schlüsselfertiges Einfamilienhaus ab 440.000 € erhältlich. Der Festpreis gilt für die schlüsselfertige Übergabe ohne versteckte Kosten.
Welche Planungshilfen kann ich nutzen?
Für BAUTENT Sonnenhang kommen verschiedene KfW-Programme in Frage, z.B. KfW 40 (Klimafreundlicher Neubau). Wir beraten Sie zu allen Möglichkeiten in der Region.
Wie lange dauert der Bau?
Die Bauzeit für BAUTENT Sonnenhang beträgt in der Regel 10-16 Wochen ab Fundamentlegung. Durch die industrielle Vorfertigung ist der Bau deutlich schneller als konventionelle Bauweisen.
Kann der Grundriss verändert werden?
Ja, alle BAUTENT Modelle sind individuell anpassbar. Sie wählen Raumaufteilung, Fenster, Fassade und Innenausstattung nach Ihren Wünschen.
Interesse an BAUTENT Sonnenhang?
Vereinbaren Sie jetzt Ihr kostenloses Beratungsgespräch. Wir planen Ihr Traumhaus gemeinsam — individuell, transparent und zum Festpreis.
Oder rufen Sie uns an: 0721 9688 4688